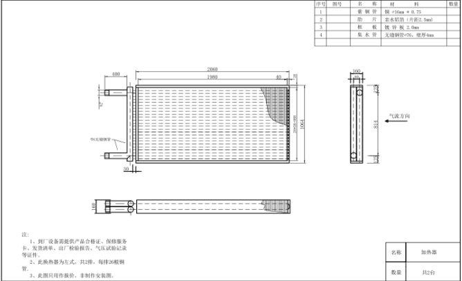
加热器
设备制造商(以下简称乙方)通过现场测量、加工制造等来满足甲方技术要求。
一、加热器使用环境
K2中央空调是空调设备有限公司制造,其中2台加热器均安装于空调箱体内,均通40℃至60℃的热水,热水压力0.6兆帕。
二、加热器材质要求
1、加热器铜管采用无缝紫铜管,规格直径∅16毫米(以下长度单位毫米均用mm表示),壁厚0.75mm。
K2加热器台数为2台,每台排数为2排,每排26根铜管,翅片片距2.5mm,管间距38mm,排间距32.91mm,左式,每台加热器有效迎风面积均为1980mm*988mm。
2、翅片采用涂层铝箔,结构铝箔+耐腐蚀层+亲水性涂层,规格厚度0.13-0.15mm。
3、加热器外框板采用壁厚2mm以上的镀锌板材制作。框板用M8mm*18mm六角螺栓联接,左右框板的上下冲吊装孔。
4、加热器集水管采用无缝钢管,集水管壁厚≥4mm。无缝钢管组装成形后,底层喷涂防锈漆,表面喷涂银粉漆。
【江苏扬天电热设备有限公司】——信息化 数字化 智能化——義飞扬天——防爆电加热器专业制造商——为新时代中国制造加油助力——全国尊贵热线:400-777-5525
三、加热器制作要求
甲方提供招标图纸用于乙方报价和设备制作参考,乙方加工前需来甲方测量,并提供详细的制作图纸,甲方人员签字确认无误后才可进行加工,乙方对加工尺寸负责。
1、铜管与翅片采用机械胀管方法胀紧,铜管内部保证清洁,无毛刺。
2、翅片为波浪形,翅片边沿目视应无毛刺或羽毛状,无松动,翅片管孔处二次翻边。
3、铜管直管采用U管(采用与直管相同规格)连接。
4、加热器作1.8兆帕气压试验,保压30分钟无渗漏,并不得产生变形。
5、加热器尺寸要求:法兰内框对角线尺寸〈1000mm时,两对角线尺寸允许偏差±3mm;法兰内框对角线尺寸〉1000mm时,允差±4mm
6、通用要求:①所购加热器均不需要放气装置;②有效盘管长>2000mm时,中间做加强,不能影响安装;③焊缝应牢固、光滑,无过烧、裂纹、气孔等缺陷。焊接要求符合《铜管钎焊技术要求》CB-T3832-1999。
四、质保期
加热器质保期至少1年,质保期内免费维修;质保期内出现质量问题,24小时内赶到现场,48小时内修复。
五、加热器验收
1、到货验收:加热器到厂后,甲方对其数量、外观质量、设备附带资料等进行验收。须提供发货清单及每台加热器的相关资料(包括产品合格证、保修服务卡、出厂检验报告、气压试验记录等)。
2、由乙方原因(包括运输过程造成加热器整体变形、管路震裂等情况、尺寸与双方确认尺寸不符)有任何损坏、缺陷、短少或不符合合同中规定的质量标准和国家地方规范时,甲方可向乙方提出修理和/或更换和/或索赔。如果由于加热器长宽高等尺寸偏大,造成加热器在原有空调箱内不能安装,乙方必须无条件免费重新制作新加热器。
3、设备出厂前乙方须将所有加热器内的水排净,以便于甲方安装前保存。如果由于乙方设备内有水造成甲方存放期间冻裂,乙方必须重新制作新的加热器。

